Индивидуальный энергоэффективный жилой.Челябинская область

Индивидуальный энергоэффективный жилой.Челябинская область
Индивидуальный энергоэффективный жилой.Челябинская область
Индивидуальный энергоэффективный жилой.Челябинская область
Индивидуальный энергоэффективный жилой.Челябинская область
Индивидуальный энергоэффективный жилой.Челябинская область
Индивидуальный энергоэффективный жилой.Челябинская область
Индивидуальный энергоэффективный жилой.Челябинская область
Индивидуальный энергоэффективный жилой.Челябинская область

Индивидуальный энергоэффективный жилой дом в загородном поселке челябинской области

 

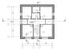
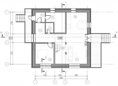
Строительный объем – 772м3

Площадь застройки – 123 м2

Площадь общая – 238 м2

Площадь отапливаемая – 153 м2

 

Ориентация здания выполнена с учетом максимально возможного энергосберегающего эффекта от инсоляции.

 

Дом запроектирован двухэтажным с плоской эксплуатируемой кровлей. Главный вход в здание с западной стороны, из гостиной имеется дополнительный выход на террасу для использования в летнее время года.

 

Энергоэффективная форма здания, его ориентация по сторонам света, размещение оконных проемов создают практичное и уютное внутреннее пространство. Объемно-планировочное решение здания, предполагающее свободную планировку основных помещений первого этажа, освещенного с торцов коридора второго этажа, а также наличие двухсветных зон позволяет обеспечить комфортное естественное освещение на протяжении всего светового дня. Утром солнечный свет наполняет внутреннее пространство через окна на восточном фасаде в помещении гостиной и холла, в обед – через окна на южном фасада в помещении гостиной и лестницы, вечером – через окна западного фасада в помещении коридора и холла. Северный фасад имеет минимальное остекление - два небольших окна.

На кровле предполагается организация системы озеленения, которая подчеркивает дружелюбность к окружающей среде, а также пространства для отдыха. Подъем и выход на кровлю осуществляется по основной лестнице. Озеленение кровли улучшает ее теплозащитные качества зимой и летом. Летом грунт/субстракт меньше нагревается за счет активного испарения воды (температура травы летом всегда на 2 градуса ниже, чем температура других покрытий), что уменьшает нагрев помещений под крышей.

Наружная отделка предполагает использование деревянного сайдинга (панелей) двух контрастных цветов.

В качестве несущих конструкций здания предполагается использование деревянного каркаса, монолитный фундамент мелкого заложения.

Непрерывность изолирующей оболочки здания из высокоэффективных теплоизоляционных материалов, отсутствие мостов холода, герметичность являются обязательными условиями. В качестве утеплителя предполагается использование минераловатных плит.

 

В инженерные системах здания предполагается реализовать следующие энергоэффективные решения:

  • Для данного объекта запроектирована геотермальная теплогенерирующая установка с тепловым насосом для покрытия потребной тепловой нагрузки на систему отопления, вентиляции и ГВС.
  • Бойлер ГВС бивалентный с теплообменником от солнечного коллектора и геотермального теплового насоса
  • По расчету в программе PHPP для стандарта Германии дом может отапливаться приточным воздухом (за счет приточного воздуха). Принята приточная установка с рекуперативным энтальпийным теплообменником.